THE GABRIELLE
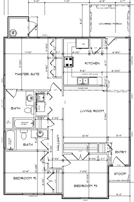
What a cute house! This charming floor plan offers 3 bedrooms, 2 bathrooms and great flow. A perfect home for down-sizers or first time home buyers! From the double master bedroom closets to the rear covered porch, this home will impress. It may be small but it sure is mighty!!NEIGHBORHOOD This floor plan is available in the Meadowbrook subdivision!
FLOOR PLANS
×
- 30-Year Shingles
- Acrylic Shower-Tub
- Black Plumbing Fixtures
- Bonus Room
- Chrome Plumbing Fixtures
- Concrete Driveway
- Dining Area
- Dishwasher
- Electric Smooth-Top Range
- Fiberglass Tub/Shower Combo
- Formal Dining Room
- Full-Size Laundry Room
- Garage
- Garbage Disposal
- Granite Counters
- Keyless Door Entry
- Large Pantry
- Marble Vanity Tops
- Microwave
- Patio
- Pull Down Attic Stairs
- Satin Nickel Plumbing Fixtures
- Smoke Detectors
- Surround Sound
- Tile Shower
- Walk-In Attic
- Wilsonart Countertops



